Save
Ask
Tour
Hide
$243,825
39 Days On Site
4230 Hollywood HwyClarkesville, GA 30523
For Sale|Unimproved Land|Active
0
Beds
0
Total Baths
Subdivision:
None
County:
Habersham
Due to the health concerns created by Coronavirus we are offering personal 1-1 online video walkthough tours where possible.



Save
Ask
Tour
Hide
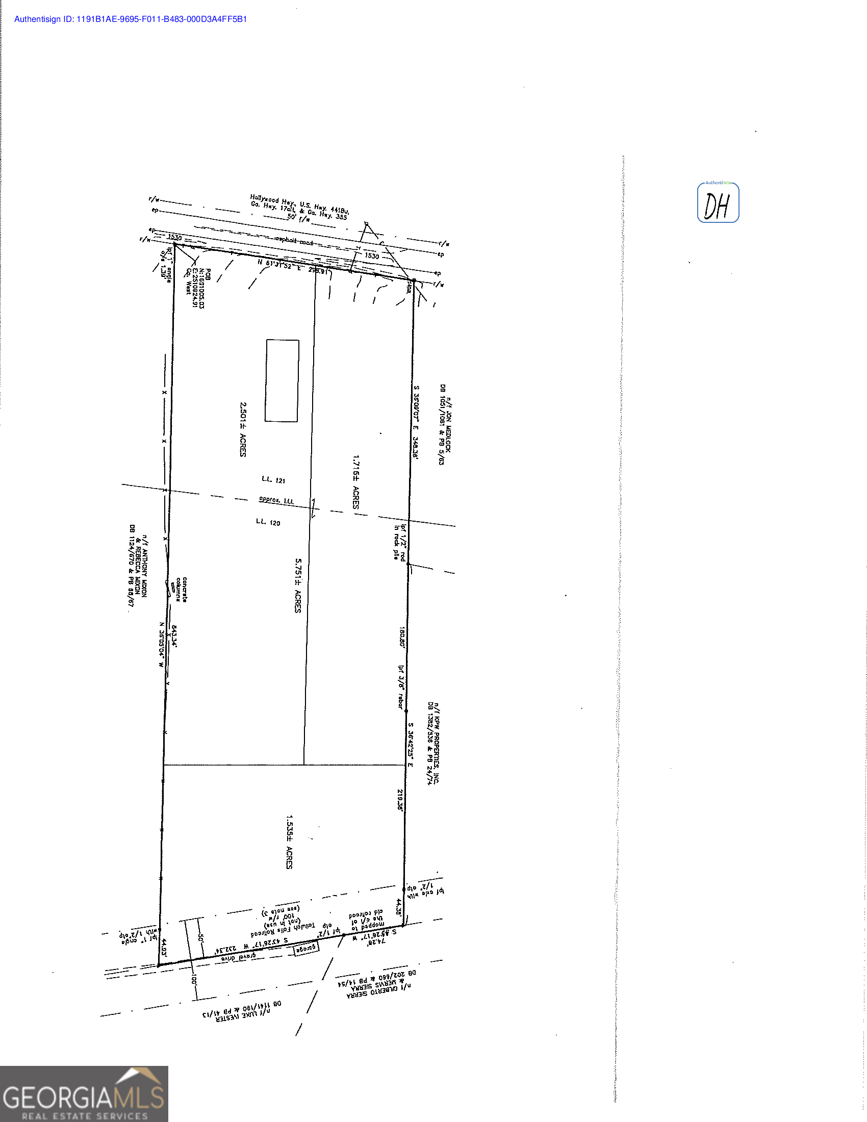
3.25+/- acres of commercial property zoned HI with potential to be split into two lots. Perfect for office/warehouse space or bring your own vision. Excellent road frontage on front lot with high visibility. Lot 1 is 1.716 acres facing Hollywood HWY. Lot 2 is 1.535 acres on back of property. Level lot on front and gently sloping to the back. Lot 2 was part of an old asbestos mine. Lots can be purchased together or separate. Property is part of a larger piece referenced on tax parcel. A new Survey to be prepared prior to closing.
Save
Ask
Tour
Hide
Listing Snapshot
Price
$243,825
Days On Site
39 Days
Bedrooms
N/A
Inside Area (SqFt)
N/A
Total Baths
N/A
Full Baths
N/A
Partial Baths
N/A
Lot Size
3.25 Acres
Year Built
N/A
MLS® Number
10613491
Status
Active
Property Tax
N/A
HOA/Condo/Coop Fees
N/A
Sq Ft Source
N/A
Friends & Family
Recent Activity
| 4 weeks ago | Status changed to Active | |
| 4 weeks ago | Listing updated with changes from the MLS® | |
| a month ago | Listing first seen on site |
General Features
Acres
3.25
Additional Property Use
Commercial
Property Sub Type
Unimproved Land
Sewer
Septic Tank
Utilities
Electricity Available
Water Source
Public
Save
Ask
Tour
Hide
Exterior Features
Lot Features
LevelSloped
Road Frontage
County RoadState Road
Community Features
Community Features
None
Financing Terms Available
CashConventional
Schools
School District
Unknown
Elementary School
Woodville
Middle School
North Habersham
High School
Habersham Central
Listing courtesy of The Norton Agency
Information deemed reliable but not guaranteed. The data relating to real estate for sale on this web site comes in part from the Broker Reciprocity Program of Georgia MLS. Real estate listings held by brokerage firms other than this office are marked with the Broker Reciprocity logo and detailed information about them includes the name of the listing brokers. Copyright © 2020-present Georgia MLS. All rights reserved.
Last checked: 2025-11-04 09:57 PM UTC
Information deemed reliable but not guaranteed. The data relating to real estate for sale on this web site comes in part from the Broker Reciprocity Program of Georgia MLS. Real estate listings held by brokerage firms other than this office are marked with the Broker Reciprocity logo and detailed information about them includes the name of the listing brokers. Copyright © 2020-present Georgia MLS. All rights reserved.
Last checked: 2025-11-04 09:57 PM UTC
Neighborhood & Commute
Source: Walkscore
Disclosure: Community information and market data powered by Constellation Data Labs. Information is deemed reliable but not guaranteed.
Save
Ask
Tour
Hide
Did you know? You can invite friends and family to your search. They can join your search, rate and discuss listings with you.