Save
Ask
Tour
Hide
$287,830
50 Days On Site
LOT 22 Clemit Harris RD LOT 22Newnan, GA 30263
For Sale|Single Family Residence|Active 
3
Beds
2
Total Baths
2
Full Baths
1,323
SqFt
$218
/SqFt
2025
Built
Subdivision:
Clemit Harris Place
County:
Coweta
Due to the health concerns created by Coronavirus we are offering personal 1-1 online video walkthough tours where possible.

Save
Ask
Tour
Hide
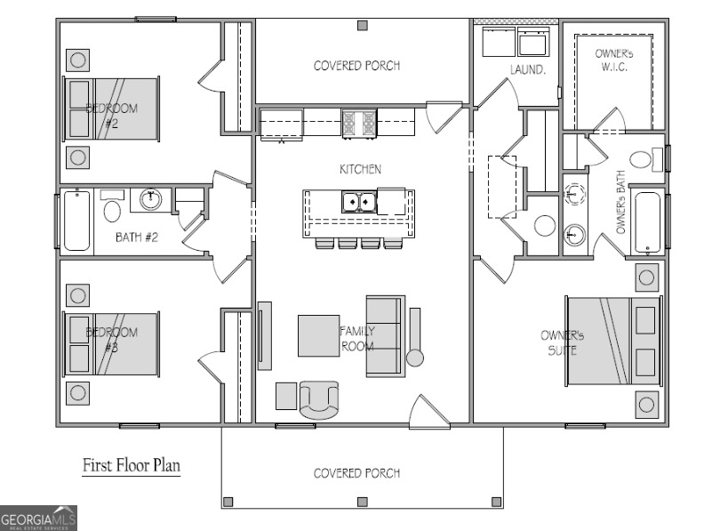
The Elmsworth floor plan. This 3 bedroom 2 bath ranch comes in at just over 1300sqft. This home is a great open floor plan that features large island with seating and stainless stove , dishwasher and venthood in kitchen. This floor plan also has a large covered front and back porch. USDA 100% financing is available for this subdivision. Call today with any questions. Construction will be finished in time for a end of year close.
Save
Ask
Tour
Hide
Listing Snapshot
Price 
$287,830
Days On Site 
50 Days
Bedrooms 
3
Inside Area (SqFt) 
1,323 sqft
Total Baths 
2
Full Baths 
2
Partial Baths 
N/A
Lot Size 
0.61 Acres
Year Built 
2025
MLS® Number 
10601562
Status 
Active
Property Tax 
N/A
HOA/Condo/Coop Fees 
$10 monthly
Sq Ft Source 
Owner
Friends & Family
Recent Activity
| a month ago | Status changed to Active | |
| a month ago | Listing updated with changes from the MLS® | |
| a month ago | Price changed to $287,830 | |
| 2 months ago | Listing first seen on site | 
General Features
Acres 
0.61
Foundation 
Slab
Home Warranty 
Yes
Land Lease 
No
Levels 
One
Number Of Stories 
1
Parking 
None
Property Condition 
New Construction
Property Sub Type 
Single Family Residence
Sewer 
Septic Tank
SqFt Above 
1323
Style 
Ranch
Utilities 
Water Available
Water Source 
Public
Interior Features
Appliances 
RangeOvenDishwasher
Basement 
None
Cooling 
Central Air
Flooring 
CarpetVinyl
Heating 
Heat Pump
Interior 
High Speed Internet
Laundry Features 
Laundry RoomIn Hall
Main Level Bedrooms 
3
Save
Ask
Tour
Hide
Exterior Features
Construction Details 
Concrete
Lot Features 
Private
Roof 
Composition
Community Features
Association Dues 
120
Community Features 
None
Financing Terms Available 
1031 ExchangeCashConventionalFHAUSDA LoanVA Loan
HOA Fee Frequency 
Annually
Schools
School District
Unknown
Elementary School
Arnco Sargent
Middle School
Evans
High School
Newnan
Listing courtesy of Piedmont Residential Realty 
 
Information deemed reliable but not guaranteed. The data relating to real estate for sale on this web site comes in part from the Broker Reciprocity Program of Georgia MLS. Real estate listings held by brokerage firms other than this office are marked with the Broker Reciprocity logo and detailed information about them includes the name of the listing brokers. Copyright © 2020-present Georgia MLS. All rights reserved.
Last checked: 2025-10-31 07:10 AM UTC
 
Information deemed reliable but not guaranteed. The data relating to real estate for sale on this web site comes in part from the Broker Reciprocity Program of Georgia MLS. Real estate listings held by brokerage firms other than this office are marked with the Broker Reciprocity logo and detailed information about them includes the name of the listing brokers. Copyright © 2020-present Georgia MLS. All rights reserved.
Last checked: 2025-10-31 07:10 AM UTC
Neighborhood & Commute
Source: Walkscore
Disclosure: Community information and market data powered by Constellation Data Labs. Information is deemed reliable but not guaranteed.
Save
Ask
Tour
Hide
 
					
Did you know? You can invite friends and family to your search. They can join your search, rate and discuss listings with you.